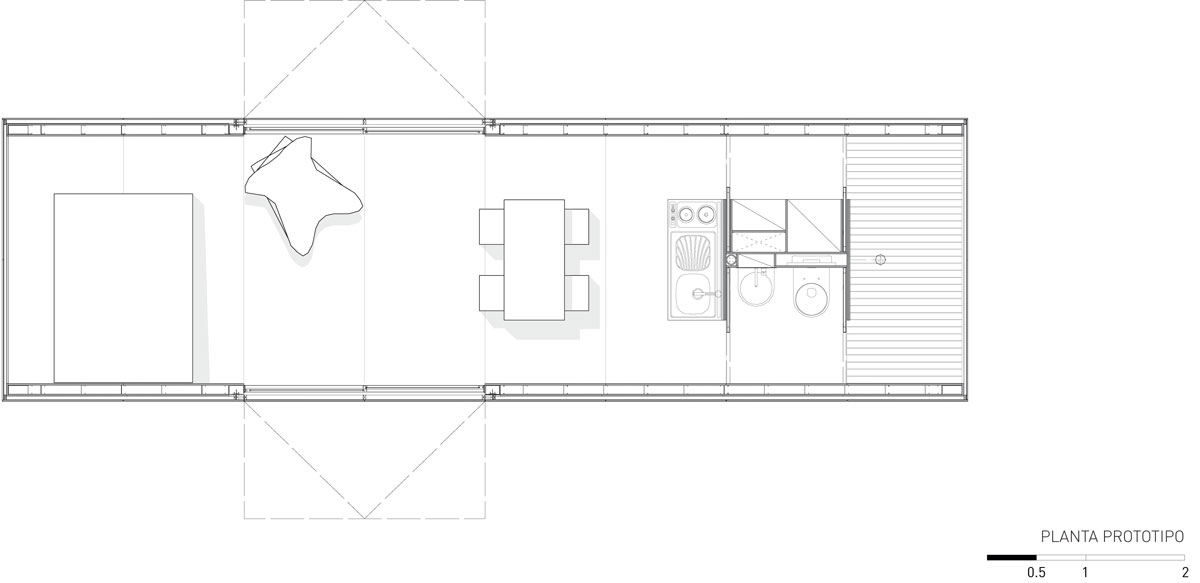
Modulo prefabricado rural

la naturaleza modular del proyecto se asegura de que la vivienda pueda ser fácilmente transformada en función de su necesidad. la expansión y la adición de nuevas unidades se pueden implementar en todo el proceso de acuerdo a las necesidades y el presupuesto del usuario. la simple estructura forma una estrecha relación con su contexto, ofreciendo ocupantes un lugar moderno y confortable de descanso. usos potenciales van desde una sala de exposición a eventos, a una escala mayor, un complejo de hotel.










