Casa Altamira - Ciudad Colon, Costa Rica

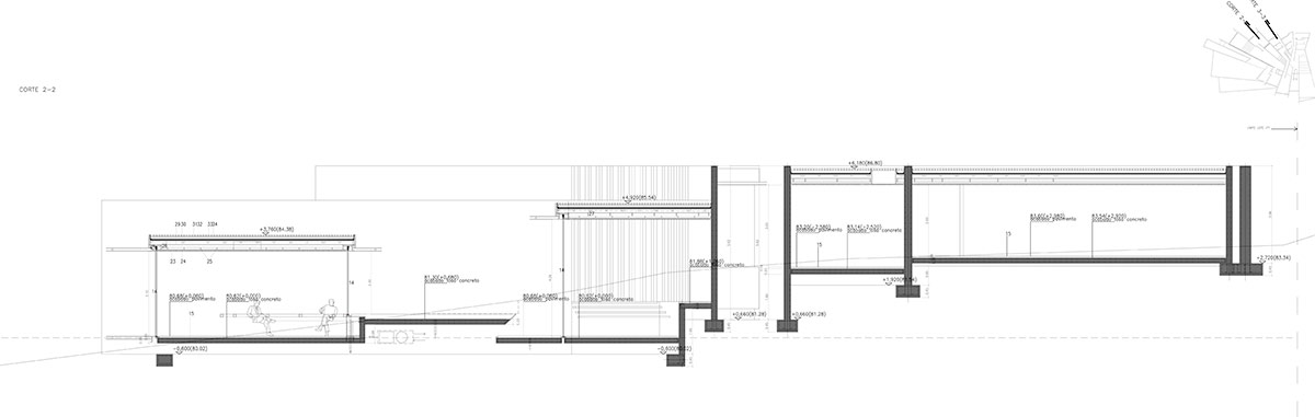
El arquitecto Español Joan Puigcorbé de arquitectura PaaS ha viajado por todo el mundo para completar la 'casa altamira ' enclavado en una colina verde vibrante en Ciudad Colón, Costa Rica. la única planta consta de alas cónicas como capas que sobresalen en el sitio, cada uno con su propio punto de vista único, cada ala convergiendo a un pasillo común que conduce a una gran sala de estar / patio al aire libre.
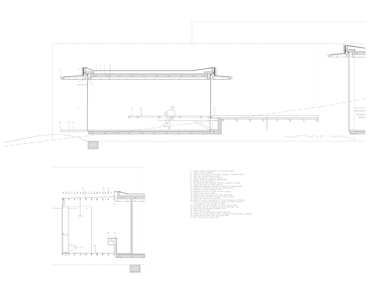
las paredes se echan en hormigón y revestido en piedra volcánica local, tanto en el interior y el exterior. la utilización de un esquema de color monocromático, el interior está marcado su ambiente cavernoso iluminado por tiras de luces LED brillantes. habitaciones individuales se derivan desde el pasillo angular central de lo que el usuario en contacto con el exterior a través de una pared de cortina grande. la piscina comienza en la terraza cubierta y sobresale a través de una caída repentina de grado. por el sur, una serie de pasos están tallados en la ladera de hacer un espacio de anfiteatro a la sombra de un gran árbol.




























