Casa en nanakuma

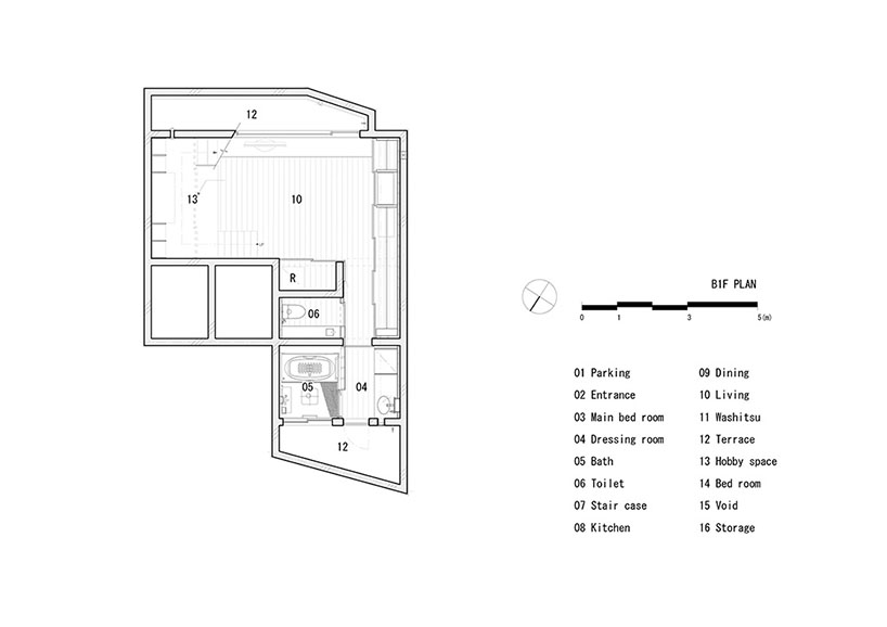
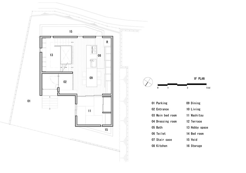
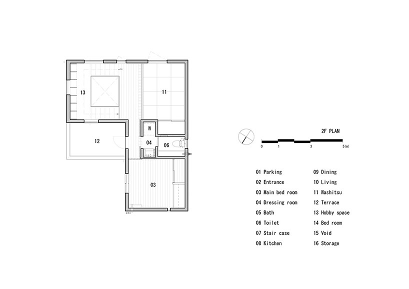
los niveles de suelo en capas de la casa en nanakuma por los arquitectos japoneses movedesign, están conectadas por una gran biblioteca que dirige la altura completa de la escalera principal. situado en Fukuoka, Japón, es el hogar de tres generaciones y los diferentes niveles permiten tanto los espacios privados individuales - sin dejar de dar una sensación de amplitud. las escaleras tienen como principal vía de artillería dentro de la casa. flujos de luz en una claraboya en los espacios de abajo y también ayuda a hacer circular el aire por toda la casa. vista ejes controlados de los árboles verdes circundantes y el cielo arriba se han perforado estratégica de las paredes. el cambio de escenas del mundo exterior, a medida que uno recorre arriba y abajo de la escalera, ofrecen una experiencia de paz y tranquilidad para los ocupantes del edificio. las ventanas son no sólo una función estética, sino que también ayudan a la dinámica térmica del interior - el ahorro de energía y el aumento de la ventilación cruzada a través de los espacios. 'casa en nanakuma' es un lugar para las diferentes generaciones para llevar a cabo estilos de vida individuales, sin dejar de tener un sentido de conexión entre sí.











