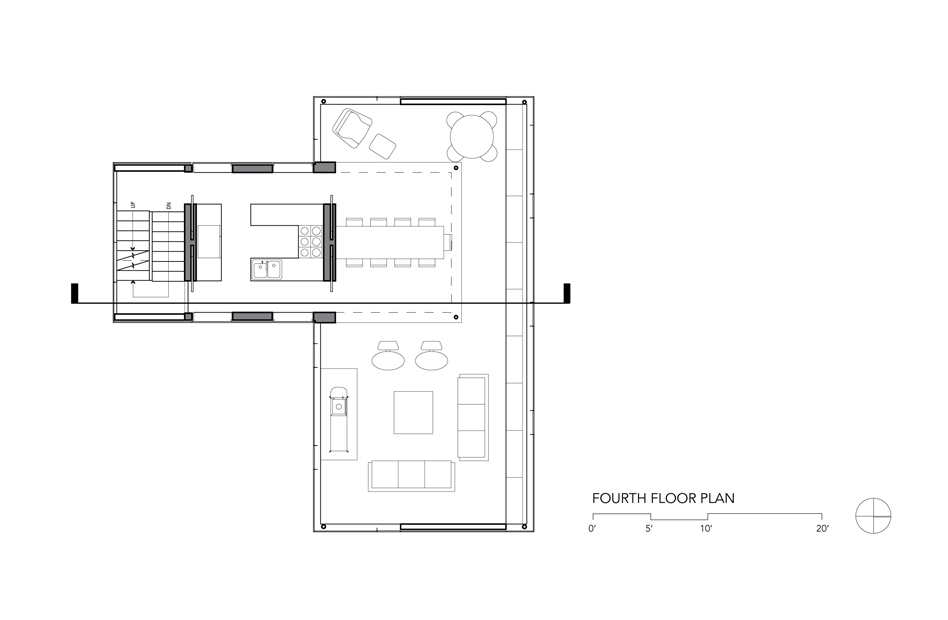
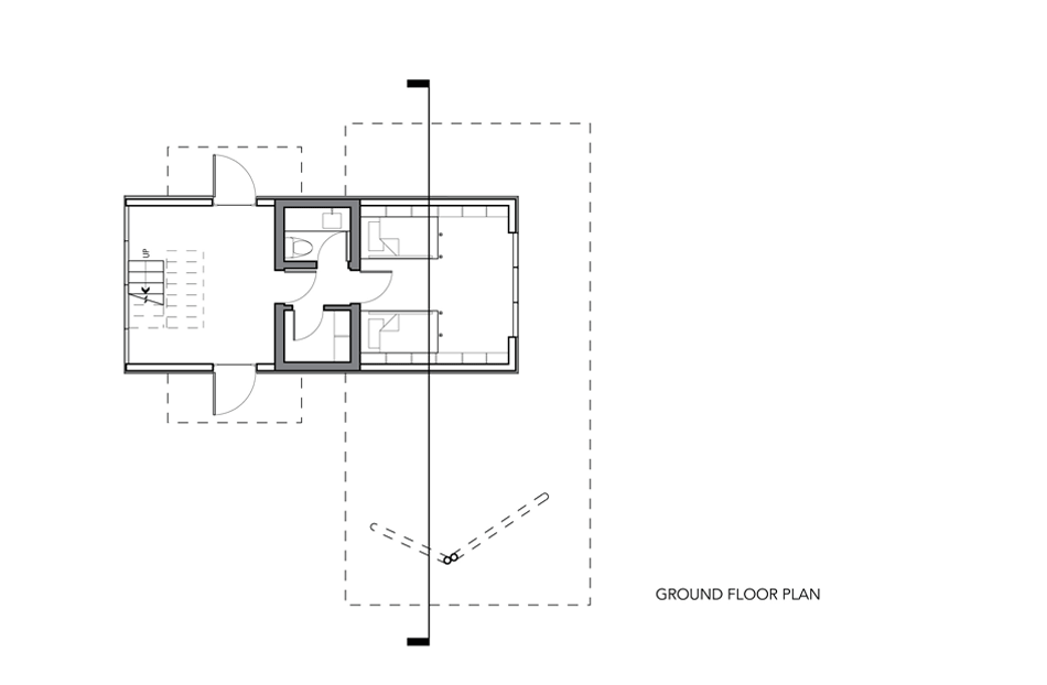
Casa observatorio

4:43 Buzzi Gerardo Andres 0 Comments

GLUCK+'s tower house designed like an observatory