Casa semi translucida

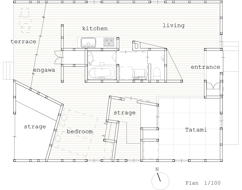
Situado en una zona rural rodeada de montañas en Yamaguchi, japón, propone una casa tranquila en su contexto natural, con respecto al ritmo del sol. la pequeña residencia está diseñado con una tienda de campaña semi translúcido.
Material de la fachada, lo que permite que el sol penetre suavemente dentro de la casa. protege la piel exterior de la casa de la lluvia, con la directa luz solar que actúa como una barrera de aislamiento. construido a partir de una estructura tradicional de estructura de madera, la vivienda cuente con un plan simple,
donde en la noche, el interior ilumina el tejido exterior como una linterna elegante en el paisaje.










