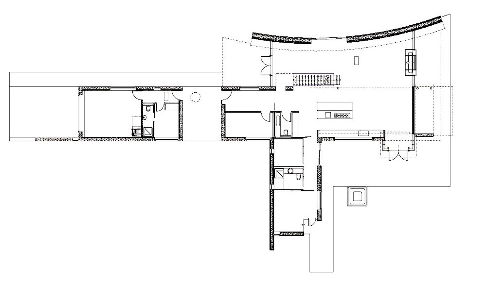
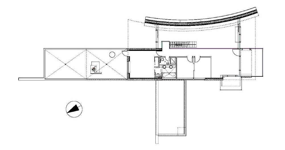
Casa G

20:58 Buzzi Gerardo Andres 0 Comments

gudmundur jonsson arkitektkontor: G house