Casa en Bangkok, Tailandia.

18:54 Buzzi Gerardo Andres 0 Comments

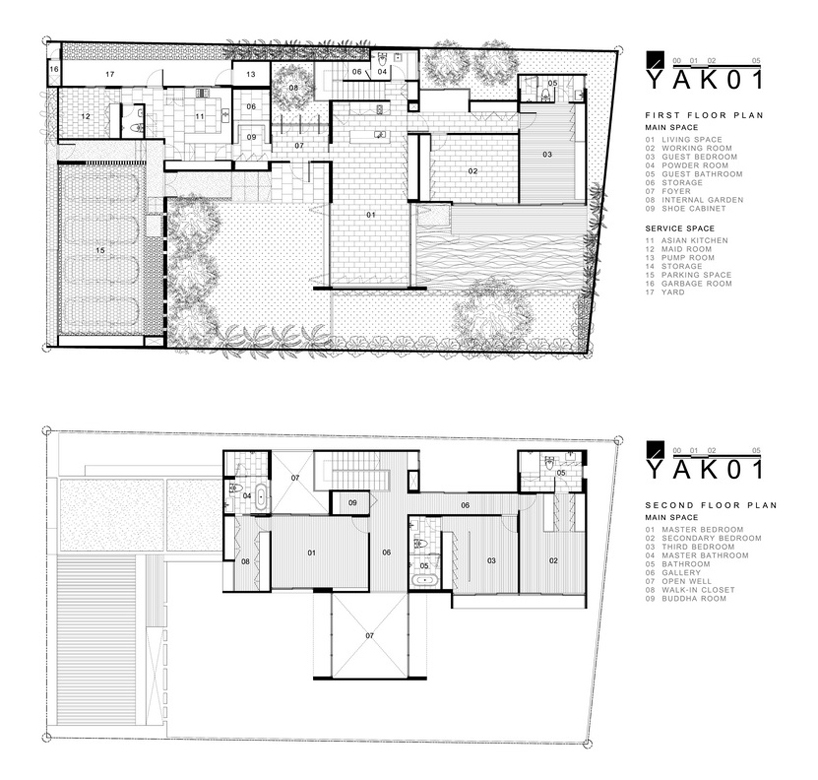
yak01 residence by ayutt and associates design