Casa en Tosuien

En la tranquila zona residencial de tosuien, en Hiroshima, la práctica japonesa Suppose Design Office ha completado recientemente una casa para una familia con tres hijos. la residencia particular ofrece su originalidad a primera vista: la estructura de marco de metal y colgantes planos de piso de concreto son completamente cubierto de paneles translúcidos como una caja de luz grande.
Un ávido coleccionista de motocicletas, la planta baja cuenta con un amplio espacio para
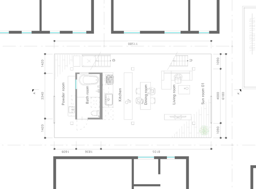
su almacenamiento, con espacio para un vehículo en el exterior ya que la casa está situado detrás de cuatro metros desde el borde de la carretera. el siguiente nivel contiene lo social
programa - comedor y salas de estar y cocina - situada parcialmente dentro de un núcleo de hormigón que oculta todos los sistemas mecánicos y de plomería,
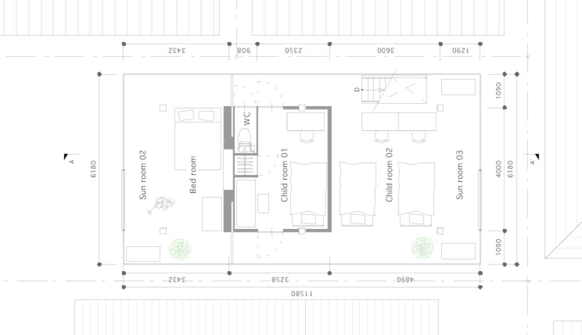
con la izquierda último piso para todas las habitaciones. las ondulaciones pequeñas de los paneles de plástico de dar una sensación de transparencia, pero mantener una cierta
nivel de privacidad, como la única imagen clara real existe dentro de aproximadamente un metro de la piel y todavía está un poco distorsionada. el interior está constantemente iluminado
por la luz difusa natural, con ventanas que se abren para proporcionar ventilación. desde el interior, las paredes se convierten en mosaicos blotched de los alrededores
barrio, haciendo alusión a los colores generales sin exponer demasiados detalles.













