Casa Sayavedra

El esquema compositivo de esta casa busca explotar el desnivel natural del terreno de diez metros optimizando así al máximo las circulaciones.
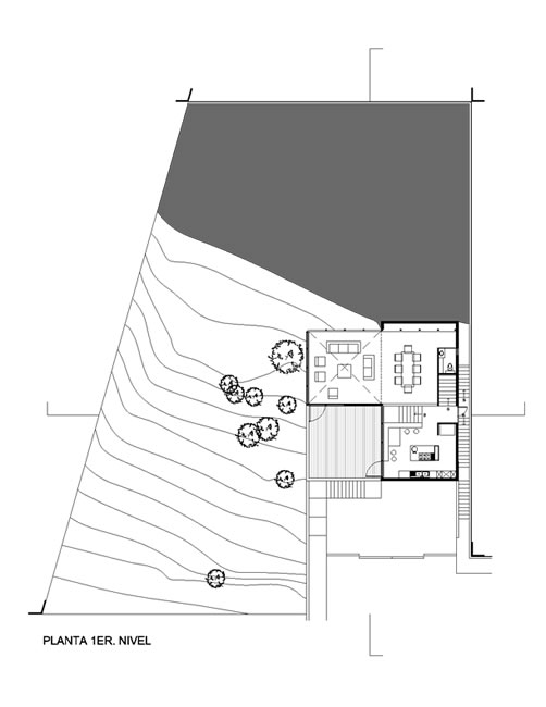
Se definieron varios volúmenes de 6×6 traslapados unos con otros creando así una serie de terrazas y dobles alturas utilizando los techos de los diferentes espacios. Así, en el primer nivel se encuentra un dormitorio y una zona de servicios (vestidor y baño). En el siguiente nivel se encuentran terraza, sala-comedor, medio baño y cocina. En el último nivel se encuentra un área de bar-televisión con terrazas a los lados.
El poniente de la casa limita con un bosque, motivo por el cual la mayoría de sus vistas se dirigen hacia éste, utilizando como filtros lumínicos los árboles existentes.
La zona social (cocina, sala, comedor y terraza) es un espacio continuo que se va mutando según las distintas funciones por medio de variaciones en las alturas y penetraciones exterior-interior a través de terrazas.
La estructura es un sistema metálico de PTR’s de 4 pulgadas cada 1.50mts que conforman al mismo tiempo la cancelería de la casa. De esta manera las ventanas son piezas moduladas que aparecen y desaparecen según las intenciones del espacio. El resto de la casa es de concreto aparente con el mismo despiece de cimbra que las modulaciones de la estructura.
Todos estos elementos provocan que el bosque entre en la casa y en sus terrazas desapareciendo las losas, convirtiéndola así en un elemento más en el paisaje.











