Concurso Centro de Investigaciones Tecnológicas Parque Patricios, participación
18:37 Buzzi Gerardo Andres 0 Comments

El Edificio por su longitud y la disposición de sus partes tiene una entrada principal y una secundaria o eventual. Aquella se ubica en la proximidad de la esquina de Labarden y Pasaje Los Patos. La eventual, cerca de la esquina opuesta. Entrando por la entrada principal se penetra en un espacio caracterizado por las serchas metálicas del edificio C bajo el cual se organizan en forma libre las funciones de emprendedores, servicios tecnológicos, doctorado y oficinas comunes de manera organizadamente libre como indicio de la propuesta de una nueva manera de trabajar y de estudiar.
En la parte posterior se desarrolla el auditorio que tiene su entrada propia y puede aislarse mediante sistemas flexibles del resto del edificio en horarios determinados. Una barra de aulas en cuya espalda se desarrolla la sección de informática constituye el principal elemento común entre esta y las áreas de automatización y mecatrónica e ingeniería mecánica. El pasillo que las vincula se abre a un Patio Interior que incluye al Edificio B que se refuncionaliza como buffet y área de informática estudiantil. En el edificio A se demuele el entrepiso quedando con una altura de 6,12 mts y soportando un puente grúa de 30 mts. lineales en su parte central del edificio.






Departamento en las montañas de Serra do Mar
19:00 Buzzi Gerardo Andres 0 Comments

La ubicación de este apartamento es único, entre una gran reserva de selva tropical que cubre las montañas de la Serra do Mar y la playa casi virgen de Baleia, en la costa norte del estado de São Paulo. Nuestro cliente quería construir cuatro casas en la parcela que es relativamente pequeño. El proyecto tuvo que aliarse privacidad de cada casa con una arquitectura que debe revelar el paisaje.
Nuestra idea era crear un plan único para todas las casas que deberían funcionar como una unidad toma ventaja de la diagonal de la parcela. De esta manera la pared de la casa vecina podría convertirse en un espacio interesante para la casa de al lado, en un delicado juego de espacios construidos y vacíos. La casa es relativamente estrecha, pero muy rica en senderos y puntos de vista.

















Suscribirse a:
Comentarios (Atom)
About
Fotografia Arquitectura
Follow Us
Popular Posts
-
Proyectar una arquitectura que conmemore la vida y la obra del General San Martín es sin dudas uno de los desafíos proyectuales más importa...
-
Dentro del plan urbanístico de Nieuw Leyden, 24H Arquitectura diseño de dos casas ecológicas. El bloque de edificio consta de 18 casas, dis...
-
Joana França es una fotógrafa brasileá formada en la arquitectura en la UnB que actúa en el campo de la fotografía arquitectónica. Dueña d...
-
Hydro Aluminium Argentina está presente en obras actuales con sus sistemas de arquitectura para fachadas, como las líneas HA62, HA110, HA Ba...
-
El fotógrafo de arquitectura, José Campos tuvo el privilegio de haber nacido en un paraíso arquitectónico: Porto, Portugal. Con su formaci...
-
Para romper las zonas típicas de una casa urbana, cocina, salón-comedor y los dormitorios , esta casa tiene una circulación doble ...
Con la tecnología de Blogger.
About us
News
Recent Articles
Popular Posts
-
Proyectar una arquitectura que conmemore la vida y la obra del General San Martín es sin dudas uno de los desafíos proyectuales más importa...
-
Dentro del plan urbanístico de Nieuw Leyden, 24H Arquitectura diseño de dos casas ecológicas. El bloque de edificio consta de 18 casas, dis...
-
Joana França es una fotógrafa brasileá formada en la arquitectura en la UnB que actúa en el campo de la fotografía arquitectónica. Dueña d...
-
Hydro Aluminium Argentina está presente en obras actuales con sus sistemas de arquitectura para fachadas, como las líneas HA62, HA110, HA Ba...
-
El fotógrafo de arquitectura, José Campos tuvo el privilegio de haber nacido en un paraíso arquitectónico: Porto, Portugal. Con su formaci...
-
Para romper las zonas típicas de una casa urbana, cocina, salón-comedor y los dormitorios , esta casa tiene una circulación doble ...
Technology
Famous Posts
Business
Blog Archive
-
▼
2013
(225)
-
▼
noviembre
(20)
- Cada día es un teatro
- Concurso Centro de Investigaciones Tecnológicas Pa...
- Casa apaisada en Nueva Zelanda
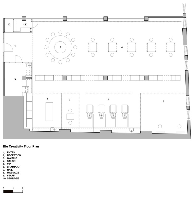
- Peluqueria en Sydney, Australia
- Casa del arrollo en India
- Departamento en las montañas de Serra do Mar
- Concurso Museo San Martiniano, Participación
- Cesar Pelli
- Residencia entre agua y luz natural
- Casa flotante
- Casa de barrio en California
- Casa en la colina Italiana de Vipiteno
- La sagrada familia
- Pabellón para la relajación en Kagawa, Japón
- Casa de vacaciones en la montaña
- Residencia Mentana en Canadá
- Vivienda portatil
- Refugio etereo
- Casa en el acantilado
- Casa terrazas de Singapur
- ► septiembre (19)
-
▼
noviembre
(20)
-
►
2012
(191)
- ► septiembre (20)
-
►
2011
(242)
- ► septiembre (15)
Concursos
Diseño
Pages
Flickr
Flickr Images
Popular Posts
-
Proyectar una arquitectura que conmemore la vida y la obra del General San Martín es sin dudas uno de los desafíos proyectuales más importa...
-
Dentro del plan urbanístico de Nieuw Leyden, 24H Arquitectura diseño de dos casas ecológicas. El bloque de edificio consta de 18 casas, dis...
-
Joana França es una fotógrafa brasileá formada en la arquitectura en la UnB que actúa en el campo de la fotografía arquitectónica. Dueña d...
-
Hydro Aluminium Argentina está presente en obras actuales con sus sistemas de arquitectura para fachadas, como las líneas HA62, HA110, HA Ba...
-
El fotógrafo de arquitectura, José Campos tuvo el privilegio de haber nacido en un paraíso arquitectónico: Porto, Portugal. Con su formaci...
-
Para romper las zonas típicas de una casa urbana, cocina, salón-comedor y los dormitorios , esta casa tiene una circulación doble ...































