Casa en la pradera
16:41 Buzzi Gerardo Andres 0 Comments

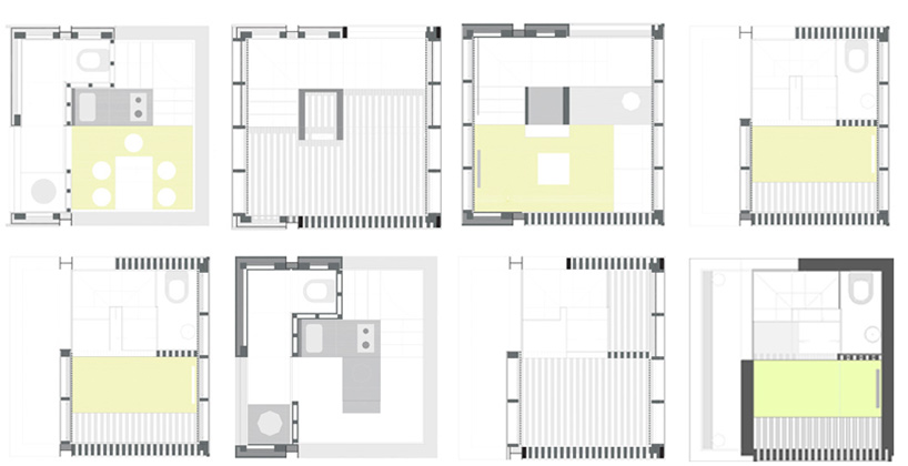
El escrito del propietario era diseñar una casa inspirada en su entorno fynbos indígenas. El sitio forma parte de The Cove, una finca privada en Knysna, y se alza sobre un acantilado con vistas espectaculares expuesto. Los propietarios querían una casa con perfecta vida interior-exterior para retiros de vacaciones de verano. La casa tenía que aprovechar al máximo las espectaculares vistas y el paisaje circundante.
El gran cuidado se ha tomado para promover los atributos naturales del sitio con el uso de materiales para complementar la paleta de colores naturales y texturas del sitio. Así, el diseño tiene un carácter cohesivo arquitectónico está bien ventilado, pero firmemente anclada en el paisaje a través de las paredes de piedra cubiertas de pesados. El edificio se adapta cómodamente a los contornos naturales de la orientación del sitio. Voladizo estructuras, como la piscina y terrazas elevadas de madera donde les permite sobresalir más allá de las líneas del edificio y de la zona demarcada destructivo para permitir la plantación indígena a crecer a continuación.


















Suscribirse a:
Comentarios (Atom)
About
Fotografia Arquitectura
Follow Us
Popular Posts
-
Proyectar una arquitectura que conmemore la vida y la obra del General San Martín es sin dudas uno de los desafíos proyectuales más importa...
-
Dentro del plan urbanístico de Nieuw Leyden, 24H Arquitectura diseño de dos casas ecológicas. El bloque de edificio consta de 18 casas, dis...
-
Joana França es una fotógrafa brasileá formada en la arquitectura en la UnB que actúa en el campo de la fotografía arquitectónica. Dueña d...
-
Hydro Aluminium Argentina está presente en obras actuales con sus sistemas de arquitectura para fachadas, como las líneas HA62, HA110, HA Ba...
-
El fotógrafo de arquitectura, José Campos tuvo el privilegio de haber nacido en un paraíso arquitectónico: Porto, Portugal. Con su formaci...
-
Para romper las zonas típicas de una casa urbana, cocina, salón-comedor y los dormitorios , esta casa tiene una circulación doble ...
Con la tecnología de Blogger.
About us
News
Recent Articles
Popular Posts
-
Proyectar una arquitectura que conmemore la vida y la obra del General San Martín es sin dudas uno de los desafíos proyectuales más importa...
-
Dentro del plan urbanístico de Nieuw Leyden, 24H Arquitectura diseño de dos casas ecológicas. El bloque de edificio consta de 18 casas, dis...
-
Joana França es una fotógrafa brasileá formada en la arquitectura en la UnB que actúa en el campo de la fotografía arquitectónica. Dueña d...
-
Hydro Aluminium Argentina está presente en obras actuales con sus sistemas de arquitectura para fachadas, como las líneas HA62, HA110, HA Ba...
-
El fotógrafo de arquitectura, José Campos tuvo el privilegio de haber nacido en un paraíso arquitectónico: Porto, Portugal. Con su formaci...
-
Para romper las zonas típicas de una casa urbana, cocina, salón-comedor y los dormitorios , esta casa tiene una circulación doble ...
Technology
Famous Posts
Business
Blog Archive
-
▼
2013
(225)
- ► septiembre (19)
-
▼
febrero
(19)
- El tiempo es la esencia
- Torre transportable para turistas
- Residencia en Washington Park
- Casa en la pradera
- Bloques de Permeabilidad y lineas - Steven Holl
- Cabaña urbana
- Pabellon Caracol
- Casa P
- Casa en Sydney Australia
- Pedras Salgadas spa & nature
- Casa con vista al mar
- Cocina en la torre
- Casa Rural
- Casa los Amates
- Centro de investigacion y desarrollo tecnologoco
- Residencia a orillas del Rio Colorado
- Cuarto de descanso mobil
- Casa en hokkaido, japan
- Casa en el acantilado
-
►
2012
(191)
- ► septiembre (20)
-
►
2011
(242)
- ► septiembre (15)
Concursos
Diseño
Pages
Flickr
Flickr Images
Popular Posts
-
Proyectar una arquitectura que conmemore la vida y la obra del General San Martín es sin dudas uno de los desafíos proyectuales más importa...
-
Dentro del plan urbanístico de Nieuw Leyden, 24H Arquitectura diseño de dos casas ecológicas. El bloque de edificio consta de 18 casas, dis...
-
Joana França es una fotógrafa brasileá formada en la arquitectura en la UnB que actúa en el campo de la fotografía arquitectónica. Dueña d...
-
Hydro Aluminium Argentina está presente en obras actuales con sus sistemas de arquitectura para fachadas, como las líneas HA62, HA110, HA Ba...
-
El fotógrafo de arquitectura, José Campos tuvo el privilegio de haber nacido en un paraíso arquitectónico: Porto, Portugal. Con su formaci...
-
Para romper las zonas típicas de una casa urbana, cocina, salón-comedor y los dormitorios , esta casa tiene una circulación doble ...
















































