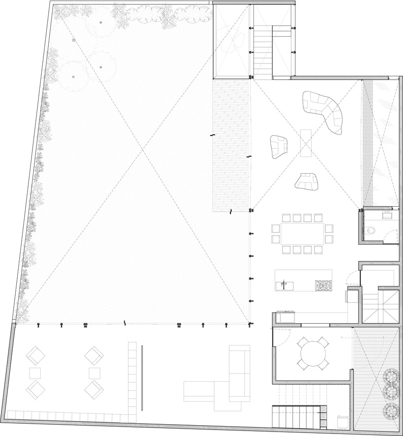
Residencia Garay
18:21 Buzzi Gerardo Andres 0 Comments

Los propietarios habían vivido en Tiburon, California desde hace muchos años, soñando con un día la transformación de su casa baja, de un piso en un escenario acorde con su entorno privilegiado, encaramado sobre Bahía de San Francisco. Sus sueños comenzó a hacerse realidad en 2005 con el diseño de una adición de 2000 pies cuadrados, junto con una completa renovación de la actual casa de 3,200 pies cuadrados.
En respuesta a las condiciones físicas del sitio, la nueva casa está casi totalmente opaca en el lado norte, donde se define una nueva entrada la corte de motor por un ritmo de cinco 'independiente' de piedra cubiertas de las paredes. Astillas de vidrio separar los paneles de piedra, creando un fuerte ritmo mientras que da pocos indicios de los extraordinarios espacios y puntos de vista en el otro lado.
La progresión de espacio comienza con una entrada baja, comprimido, lo que lleva a una columna de circulación. Bañado por la luz de las ventanas del triforio y los tragaluces, la columna vertebral da una nueva vida, comedor y cocina 'pabellón', y las nuevas terrazas orientadas hacia el sur, con vistas de clase mundial de la Bahía de San Francisco más allá. Acristalamiento sin marco, guardándose las puertas de cristal y techo en voladizo espectaculares ampliaciones por conectar a la perfección el espacio interior al espacio exterior, difuminando la frontera entre los dos.
















Santiago Calatrava Estacion Lyon Satolas
17:35 Buzzi Gerardo Andres 0 Comments
Santiago Calatrava | Lyon Satolas Station from lichtecht on Vimeo.
Suscribirse a:
Comentarios (Atom)
About
Fotografia Arquitectura
Follow Us
Popular Posts
-
Proyectar una arquitectura que conmemore la vida y la obra del General San Martín es sin dudas uno de los desafíos proyectuales más importa...
-
Dentro del plan urbanístico de Nieuw Leyden, 24H Arquitectura diseño de dos casas ecológicas. El bloque de edificio consta de 18 casas, dis...
-
Joana França es una fotógrafa brasileá formada en la arquitectura en la UnB que actúa en el campo de la fotografía arquitectónica. Dueña d...
-
Hydro Aluminium Argentina está presente en obras actuales con sus sistemas de arquitectura para fachadas, como las líneas HA62, HA110, HA Ba...
-
El fotógrafo de arquitectura, José Campos tuvo el privilegio de haber nacido en un paraíso arquitectónico: Porto, Portugal. Con su formaci...
-
Para romper las zonas típicas de una casa urbana, cocina, salón-comedor y los dormitorios , esta casa tiene una circulación doble ...
Con la tecnología de Blogger.
About us
News
Recent Articles
Popular Posts
-
Proyectar una arquitectura que conmemore la vida y la obra del General San Martín es sin dudas uno de los desafíos proyectuales más importa...
-
Dentro del plan urbanístico de Nieuw Leyden, 24H Arquitectura diseño de dos casas ecológicas. El bloque de edificio consta de 18 casas, dis...
-
Joana França es una fotógrafa brasileá formada en la arquitectura en la UnB que actúa en el campo de la fotografía arquitectónica. Dueña d...
-
Hydro Aluminium Argentina está presente en obras actuales con sus sistemas de arquitectura para fachadas, como las líneas HA62, HA110, HA Ba...
-
El fotógrafo de arquitectura, José Campos tuvo el privilegio de haber nacido en un paraíso arquitectónico: Porto, Portugal. Con su formaci...
-
Para romper las zonas típicas de una casa urbana, cocina, salón-comedor y los dormitorios , esta casa tiene una circulación doble ...
Technology
Famous Posts
Business
Blog Archive
-
►
2013
(225)
- ► septiembre (19)
-
▼
2012
(191)
- ► septiembre (20)
-
▼
julio
(17)
- Casa H24
- Residencia Garay
- Santiago Calatrava Estacion Lyon Satolas
- Salon Aires de negocios
- Residencia Utriai
- Casa SGNW
- Kinetic Rain
- Poseidon Resort submarino
- Recidencia RCG
- Viviendo en el Garage
- Residencia en North Fork
- Casa y galeria en Daeyang - Steven Holl
- Valcucine: Cocina Conceptual
- Casa en Ovar
- Campus vertical
- Casa L
- Casa Maribyrnong
-
►
2011
(242)
- ► septiembre (15)
Concursos
Diseño
Pages
Flickr
Flickr Images
Popular Posts
-
Proyectar una arquitectura que conmemore la vida y la obra del General San Martín es sin dudas uno de los desafíos proyectuales más importa...
-
Dentro del plan urbanístico de Nieuw Leyden, 24H Arquitectura diseño de dos casas ecológicas. El bloque de edificio consta de 18 casas, dis...
-
Joana França es una fotógrafa brasileá formada en la arquitectura en la UnB que actúa en el campo de la fotografía arquitectónica. Dueña d...
-
Hydro Aluminium Argentina está presente en obras actuales con sus sistemas de arquitectura para fachadas, como las líneas HA62, HA110, HA Ba...
-
El fotógrafo de arquitectura, José Campos tuvo el privilegio de haber nacido en un paraíso arquitectónico: Porto, Portugal. Con su formaci...
-
Para romper las zonas típicas de una casa urbana, cocina, salón-comedor y los dormitorios , esta casa tiene una circulación doble ...


































